
本日の目次
- 本日の目次
- はじめに
- 間取りに余白を作る
- 入居当初は何も無いスペース
- 子どもが生まれたことで雑魚寝部屋に変化
- タイルカーペットを敷いて子どもが遊べるキッズスペースに
- これから余白のある間取りをどう変化させるか
- さいごに
はじめに
最近ブログの更新頻度が落ちてしまいました😱
毎日仕事が終わった後にブログを書いていたんですが、これが中々時間を作るのが大変だったんですよね...!
特に今年の7月に次女が生まれてからは寝かしつけにも時間を取られていて、子供の成長とともにライフスタイルも変わってきましたね😂
そして今後もきっと色々な要因でライフスタイルは直ぐに変化していくのだと思います。
コタツを出してから寝落ち率が上がったのも、ブログの更新が滞った理由の一つでもあります😅
もっと言えば、僕たちは現在の家を買った時はまだ子供はおらず、最初は夫婦二人で生活をしていました。
なので間取りを決めるのはとても難しかったですね💦
子供部屋がいくつ必要かも分かりませんし、家が広すぎても無駄で狭すぎても困るし....
そこで設計士さんと検討したのは「柔軟に対応出来る間取り」でした🙌
間取りに余白を作る

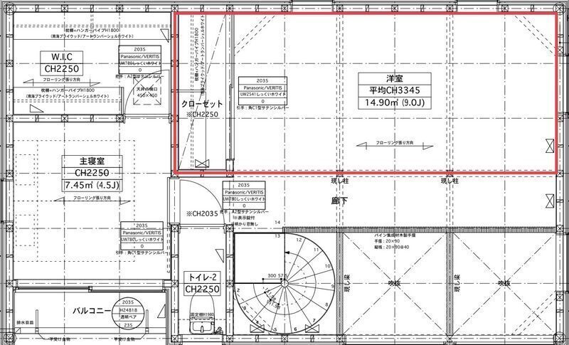
こちらはわが家の2階の間取りです!
赤枠部分はクローゼットを除き、間仕切りの無い空間となっています。
つまり、余白的なスペースですね🙌
この間取りに余白を設けることでライフスタイルに合わせて様々な使い方が出来るというわけです!
僕たち家族の成長と共にわが家も成長していくということですから、家作りが好きな僕にとってはピッタリの間取りでした👍
入居当初は何も無いスペース

入居当初はほぼ何も無い空間でした。
当時はとりあえず賃貸時代に使っていた有り合わせの家具を置いていましたが、全く使い道の無いスペースでしたね😂
子どもがいなければ書斎やカフェスペースみたいにしようかとも思っていましたね!
夫婦2人で過ごす分には主にリビングと寝室だけで十分でしたので、結局2年ぐらいはこんな感じの何も無い空間のまま過ごしていたと思います!
子どもが生まれたことで雑魚寝部屋に変化

長女はベビーベッドで寝るのを嫌がり、当初はダブルベッドで川の字になりながら寝ていました💤
ただ、長女が寝返りを打てるようになるとベッドからの転落リスクが気になってきました...。
そこで、余白として取っておいた部屋にマットと布団を敷き、写真のような感じで雑魚寝スタイルで寝ることになりました🙌
余談ですが、安いマットレスだったので身体中が痛くなったのを思い出します😂
このときベビーゲートも設置し、長女が動き回っても安心でしたね☺️
ちなみにこのベビーゲートは今でも使っています🙌
きっと次女が成長していく中でも大活躍してくれることでしょう!
タイルカーペットを敷いて子どもが遊べるキッズスペースに

長女が1歳になって歩き始めた頃にタイルカーペットを敷きました!
タイルカーペットのおかげで長女が転んで頭をぶつけても怪我が無く、また長女がおもちゃを投げても床に傷がつくことなく過ごすことが出来ました🙌
ちなみにこちらのタイルカーペットは「東リのアタック550」という商品で、これが絨毯のような肌触りで気持ち良いんですよね☺️
しかも、接着剤やテープなどを貼る必要はなく、裏側に滑り止めがついているのでただ並べていくだけで設置も簡単でしたね✌️

その後、長女の成長と共におもちゃが少しずつ増えていきました🧸
最初は上の写真のように、まだまだスペースもたくさんありましたが...

今はだいぶおもちゃがだいぶ増えましたね...!
写真の状態はまだ片付いていますが、普段はメルちゃん・リカちゃん・シルバニアが部屋中に散らばっています😂
女の子と男の子がそれぞれいる家庭だとこれにプラレールや戦隊グッズが増えるわけですから、収納が大変ですよね😂
これから余白のある間取りをどう変化させるか

子どもが成長すれば自分の部屋が欲しくなるでしょうから、いつかリフォームが必要になるでしょうね!
上の写真は自分でシミュレーションをした時の写真になりますが、こうなるかも分かりません😂
その時の娘たちの意向もあるでしょうからね!
未来なんて誰にも分からないからこそ、余白を作ることが大事なのだと思います🙌
子どもが大人になって家を出ていけば子供部屋として作った部屋も使わなくなりますから、その時のことも見越して柔軟に対応出来る家作りをしたいなーーと思いますね!
さいごに
ライフスタイルに合わせて家が変わっていく...
考えることはいっぱいあって大変かもしれませんが、僕にとってはとても楽しい作業です😆




