本日の目次
はじめに
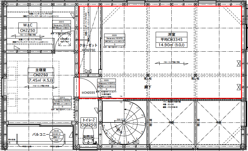
今回お見せするのはサブリビングです。
サブリビングは2階にある12畳程のスペースを指します。

赤枠部分がサブリビングです。
子供が出来たらサブリビングを間仕切って、
部屋を2つに分ける予定です。

こんな具合です。
ちなみにまだ物が何も無いので、
入居前web内覧会と称した記事と内容はほとんど変わりません笑
ではいきます!!
まだ家具が揃っていません。

まだ何も買いそろえていないので、
とりあえずアパート時代に使っていた物を配置してみましたが、
微妙すぎる笑
ここはまだ発展途上なので、
ゆっくりと家具を買いそろえます...
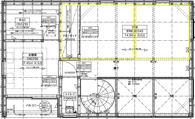
収納力は十分でした

クローゼットです。
2階の壁も漆喰なんですが、
Panasonicの引き戸と色がマッチしています!
この引き戸を開けるとーーー

ダンボーーーーール!!!
まだ引っ越しで片付けていない物がここにあります笑
収納はリビング・サブリビング・寝室と各部屋に2畳前後設けているので、
現状は全く困っていません。
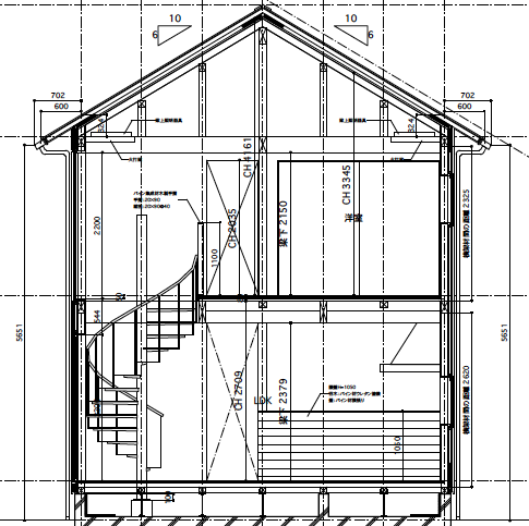
勾配天井で広がる空間


勾配天井が空間をかなり広げてくれます。
ちなみに1階と同様に天井は仕上げずに構造が見えています。
天井に使用しているのはラーチ合板です。

立面図です。
2階の天井高は頂点で4.2m弱です。
勾配天井は割高になりますが、
来客者の反応はすごく良いですね!
吹き抜けで繋がる空間

吹き抜けが1階リビングと空間を繋げます。
吹き抜けは音・匂い・温度など色々なものを繋げます。
これをメリットとするかデメリットとするか...
僕はメリットと捉えています!!
音で家族の雰囲気を感じ、
朝起きたら嫁が淹れたコーヒーの匂いを感じ、
温度は断熱性能が良いので気にならず、
吹き抜けによって視覚以外の感覚で空間を広げてくれます。
さいごに
今後の展望
・テレビとコタツを置いてくつろぎスペース
・幅240cm程のデスクを置いてスペース
うーーーーーーーん、悩ましい




